#28 - Are Interior Bedrooms Bad?
A surprisingly polarizing question
In This Issue
Are Interior Bedrooms Bad?
Reading List
Are Interior Bedrooms Bad?
One topic that’s surprisingly controversial in housing discourse is the interior bedroom — a bedroom with no exterior window. Critics see these as inherently unsafe or inhumane, describing them as having no daylight, no view, and as a slippery slope toward slumlord product. Supporters see something a bit different: a quiet, dark place to sleep, with unit layouts that can be more efficient, less expensive, and more attainable for people who like the tradeoffs.
Many jurisdictions have made these bedrooms functionally illegal, and others allow them only under very specific circumstances, with a bunch of highly prescriptive requirements.
A Tale of Two Markets
These requirements often come from different levels of government. State/provincial codes usually set standards related to light and fresh air, while municipalities tend to interpret those rules and apply detailed regulations.
For example, here are some examples of rules that come from the Ontario Building Code and City of Toronto’s Buildings department:
OBC requires that all bedrooms have a “view to the outdoors”; how this is achieved is open to interpretation by local governments.
Generally this has been interpreted to mean that an interior bedroom must have access to “borrowed light” via a glazed portion of the wall that allows sunlight from an exterior window to come into the bedroom.
The City of Toronto requires that the glazing area be 40% of the bedroom wall where it is located.
Toronto has interpreted the OBC such that the minimum glazed area may not be frosted for privacy — it must be clear glass. Additional area may be frosted.
Toronto requires that the glazing must face the exterior wall, with no more than a 30 degree angle, and without obstructions. This means that the wall may not be oriented perpendicular to the exterior facade, and you cannot locate a kitchen island or other permanent feature in front of it.
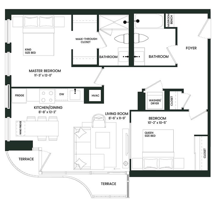
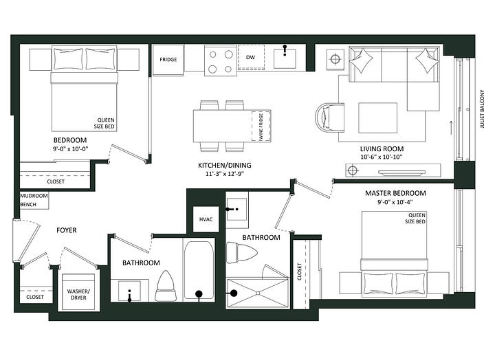
Before I moved to Toronto, I had built lots of apartments with interior bedrooms. DC had rules about these designs, but they were much less restrictive than Toronto’s. For example, the total glazing area was smaller and the glazing didn’t need to directly face an exterior window. Here are some examples of plans that I built. I still think these are quite good layouts.




These kinds of units were not unique to my projects. These were very common in the DC region, and I don’t recall ever getting negative feedback about them from residents. Some people preferred to have a window, others wanted a quieter, darker bedroom. As the parent of two young kids, I think about how much time/money/mental energy I have spent on making my home’s bedrooms as dark as possible! If we’d had kids in an apartment, this would have been the ideal setup for us.
Here’s an interior view of one such unit. You’ll notice that the glazing isn’t that big at all — basically the size of a modest window. We added a roller shade for privacy and better darkness for sleeping.



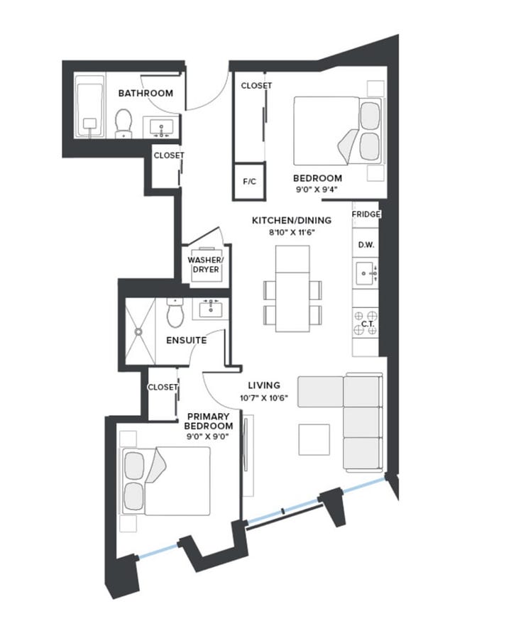
In Toronto/Ontario, the rules are much more restrictive. This makes it much harder to build interior bedrooms, which means that you see a lot fewer of them. I would take this a bit further, and argue that the very rules intended to make interior bedrooms “better” tend to make them less livable.
Here are some examples in Toronto that illustrate what I mean.




You’ll notice in the Toronto examples that the required glazing for these bedrooms tends to face the busiest/loudest/brightest parts of the apartment. This is mostly because of the rule that glazing must face the exterior window. This leads to more visible activity, less privacy, and more sound coming into the bedroom. It can also create awkward conditions where your bedroom has a gigantic window that opens directly into the kitchen, or along the only wall where you could reasonably place a TV in the living space.
If I were in charge of building code and municipal rules about interior bedrooms, I would ask myself: is this the right balance between prescriptive rules and the quality of the resulting designs? In my opinion, it’s pretty clear that the rules here are not making the resident’s experience better, compared to DC’s rules.
The Numbers
But why do developers build interior bedrooms in the first place?
There are several reasons. First, you can fit more bedrooms in less space if some of the bedrooms aren’t required to have a window. (I will provide some examples below.) Second, allowing interior bedrooms increases your optimal apartment depth (in a double-loaded corridor building, the distance between the exterior wall and the interior corridor wall), which increases your average building efficiency (the ratio between the total floor area and the area that generates revenue).
I am going to provide some diagrams to understand how this works. But first, some caveats:
We are limiting our analysis to a double loaded corridor design, because that is how the vast majority of new apartments are constructed. I am a big believer in single-stair designs that solve some of these problems, but that’s a topic for another post.
I am using imperial units (sorry!) because my audience is a mix of Canada/US, and because Canadians tend to be pretty good at switching between imperial and metric. Further, Canadian rental developers tend to use square feet as their preferred unit for residential underwriting, even though drawings are often dimensioned in metric.
For the sake of simplicity I am assuming standard bedroom dimensions of 9’x10’, and bathrooms of 6’x9’. This does not reflect required dimensions for accessible units.
First, let’s look at a floorplan showing a segment of a double-loaded corridor building. It is 60’ long and 65’ wide. It includes a 5’ corridor, flanked on either side by residential space of 30’ depth. On the left you see structural bays 10’ wide (more common in Toronto), and on the right the bays are 12’ wide (more common in the US).
You’ll notice that I am not including stairs or elevators, which you should assume exist somewhere off the page. For the moment, I want to ignore those and look only at the impact of unit width and depth. This segment of the building has 3,900 square feet of Gross Construction Area (GCA), of which 300 sf is corridor. The Gross Leasable Area (GLA) is the space you can charge rent for, and GLA divided by GCA is your GLA efficiency — 92.3% in this example.
65’ was around the optimal building depth for my projects in the US, for reasons we will see below. I will also show a monthly rent for each apartment, using a flat rent per-square-foot of $4. This is because we want to analyze the economics of building this space at the margin. This just means, what is the impact of adding this space, while the rest of the building stays the same? For this example let’s assume $4 psf and a 6% yield is our threshold for financial feasibility; below this rent, we simply wouldn’t build any additional space.
Now let’s start adding in bedrooms. A studio apartment is pretty straightforward — we locate the combined bedroom'/living space at the exterior window. These units are small and efficient, with plenty of room near the corridor for a bathroom and kitchen.
But what if we want an enclosed bedroom?
Then we run into a problem if we want to use a single structural bay. If the bedroom is at the exterior, then the living space gets no sunlight. Most residents care a lot more about having sun in the living space than in the bedroom, because most people spend the most time in their bedroom while they’re asleep, and they spend lots of daytime hours in the kitchen and living room. This means that if you insist on daylight in the living space, you need to add another structural bay. This effectively doubles the size of the apartment, and doubles the rent.
And you’re left with a question: what do you do with all of that space at the back of the apartment, which has no windows? It’s more than you need for bathrooms, kitchen, and storage. But you still need to meet your $4 per square foot, so this means that your units will be larger and more costly than they need to be. To put it another way, it will be harder to lease this 1BR apartment compared with competing 1BR units of a smaller size.
As you can see below, this problem gets worse as you add bedrooms.
Just look at all that wasted space! And the rent you need to achieve is way too high for most people to afford. So what’s the answer?
One answer is to make the building narrower. See below. This segment is just 45’ wide.
One thing to note right away is that the efficiency of this segment is 88.9%, or roughly 3.4% lower than the 65’ design. This means that to achieve the same yield, our rents would need to be a little higher per square foot.
Let’s add some bedrooms.
The first thing I notice is that these units are too shallow to comfortably fit a bedroom and bathroom, much less a full kitchen. So these units would probably need a code-minimum shower stall and a small kitchenette. Which is fine. Suitable for students, or very budget-constrained renters. But what if we want enclosed bedrooms?
Then we run into the same issue as before. We need to start adding structural bays. Here’s an example with 1BR and 2BR units.
On one hand, this move has solved a couple of problems. First, we no longer have too much dead space at the back of the unit. Second, we have reduced the total rent to a level that will be attainable for more people.
On the other hand, these layouts are so tight that we are bound to run into problems during detailed design, particularly in the units on the left with a 10’ structural bay (e.g., columns making it difficult to furnish bedrooms, tight space for hallways). In my opinion, these units are a little bit strange. Plus their long/narrow layout means they have more exterior surface area per unit of volume (which means higher cost to heat and cool), and as we determined before they will be more costly to rent given the same square footage.
Next, let’s see what happens if we go back to the 65’ building design and add interior bedrooms. We aren’t going to look at interior bedrooms in the 45’ design because (as you will see above) moving the bedrooms to the interior means putting bathrooms and halls on the exterior, which doesn’t make any sense.
It’s important to note that my interior bedrooms below follow the DC rules, not the Toronto rules. I’m allowing these bedrooms to have openings perpendicular to the exterior windows.
A few things to notice:
We can now fit an enclosed 1BR unit in a single structural bay, at least in the 12’ scheme. This also means more generous living space due to the extra width.
This means a 1BR can take up just half of the space required when all bedrooms must be on the exterior. We can now provide a 1BR to the market at much lower minimum cost — $220 per month less than the 45’ scheme!
The problem of dead space has disappeared. We now have reasonable interior areas for kitchens, baths, circulation, and storage.
The living spaces in the deeper units are generally more generous than in the shallower units.
Here’s a table that summarizes the numbers, and compared rents and areas for 2BR apartments.
Between our 45’ and 65’ schemes, the 65’ 2BR unit with interior bedrooms is able to provide the exact same unit area, but with lower rent, better unit design (in my opinion), and better GLA efficiency. Not to mention lower utility cost for the resident, due to the higher enclosure ratio.
Some people will argue that it doesn’t matter if it’s more affordable, or creates better units. They would simply never want to have a bedroom without a window. And that’s fine! Notice that our design with the interior bedrooms still has lots of bedrooms with windows for these people.
One thing that’s interesting is if you poll your friends, you will likely find that lots of people prefer a darker, quieter bedroom — especially parents with young kids. In my view, these bedrooms should be allowed since there is not a strong health- or safety-oriented reason to restrict them; it’s more a moral and aesthetic argument. If the resulting units are truly inferior, then the market will punish the builder with lower rents, which seems like a perfectly sufficient consequence given the low stakes.
So if we want a city that is more affordable and family-friendly, I think the OBC should be revised to focus on light rather than a direct exterior view (which would unlock perpendicular glazing and improve sound/privacy issues), and Toronto should reduce its 40% glazing rule.
Reading List
The Origins of Efficiency, by Brian Potter. I listed this book last month, and am still working through it. If you haven’t come across any information on it one before, here is a good intro that explains the author’s reason for writing the book. Potter was a structural engineer with Katerra, a factory homebuilder that raised more than $2 billion in venture capital and at one point had 8,000 employees before eventually collapsing and declaring bankruptcy. An important read in the context of Canada’s push for more modular and prefabricated housing.
An Elegant Puzzle: Systems of Engineering Management, by Will Larson. A great collection of management principles for complex organizations. It focuses on management techniques for the tech sector, but I think a lot of the ideas will generalize to other industries.
That’s A Wrap.
Thank you for reading. I write this newsletter because I like to connect with smart people who are doing interesting things. Reach out by replying to this email or commenting below.
I’m thinking of our Jewish friends and neighbors this week — wishing you a safe, peaceful Hanukkah. And to all: may you and your families enjoy a restful and joyous holiday season. See you in the New Year.













The perpendicular glazing rule is so counterintuitive when the goal is better livability. I rented a place in Denver with interior bedrooms that had DC-style perpendicular borrowed light and it was way quieter than having windows facing the street. Toronto's rule kinda forces the bedroom window to look directly into the noisiest part ofthe apartment.